Proprietate
- 5 Rooms
- 4 Bedrooms
- 3 Bathrooms
- 1 Garages
Descriere
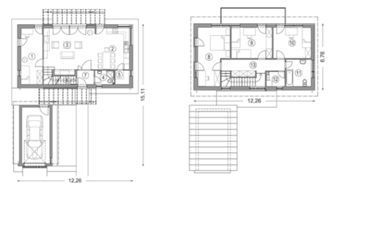
| Parter | 82,72 m2 |
| Mansardă | 67,99 m2 |
| Total | 150,71 m2 |
| +garaj | 17,73 m2 |
| +terasă | 29,30 m2 |
| +terasa de pe acoperiş | 19,37 m2 |
Parter: | |
| 1. camera | 13,96 m2 |
| 2. bucătărie-sufragerie | 18,69 m2 |
| 3. camera de zi | 27,00 m2 |
| 4. baie | 4,28 m2 |
| 5. WC | 1,73 m2 |
| 6. cămară | 2,59 m2 |
| 7. debara | 1,27 m2 |
| 8. hol | 10,26 m2 |
| 9. antreu | 2,94 m2 |
Mansardă: | |
| 10. cameră | 13,47 m2 |
| 11. cameră | 20,98 m2 |
| 12. cameră | 13,47 m2 |
| 13. baie | 6,52 m2 |
| 14. hol | 13,55 m2 |
Suprafaţa brută construită: | 132,53 m2 |
| Număr camere: | 5 buc. |
| Număr dormitoare: | 4 buc. |
| Panta acoperişului: | 37°, 42° |
| Zonă de construcţie recomandată: | Interiorul terenului sau la marginea terenului |
Energy Class: A+
Energy class A+
A+A
B
C
D
E
F
G
H
Property Id: 22183
Price: 104,800 EUR Finisat
Rooms: 5
Bedrooms: 4
Bathrooms: 3
Suprafața totală: 150.71 m2
An construcție: 2023-04-13
Garaj: 1
Număr camere: 5
Dimensiuni camere: 20.98 m2
Bucătărie: 18.69 m2
Sufragerie: 18.69 m2
Camera de zi: 27.00 m2
Număr băi: 3
Dimensiuni Baie: 6.52 m2
WC: 1.73 m2
Cămară: 2,59 m2
Antreu: 2.94 m2
Reviews
You need to login in order to post a review
Similare
Featured
Sales
Model Mediteran Varianta II
63,000 EUR Finisat
Parter107,23 m2+ terasă acoperită7,17 m2+scară4,86 m2Parter:1. camera12,06 m22 ...
Featured
Sales
Model Luna Varianta I
86,900 EUR Finisat
Parter129,16m2+garaj16,68 m2+terasă26,85 m2Parter:1. camera18,57 m22. &nb ...




