Proprietate
- 3 Rooms
- 2 Bedrooms
- 2 Bathrooms
Descriere
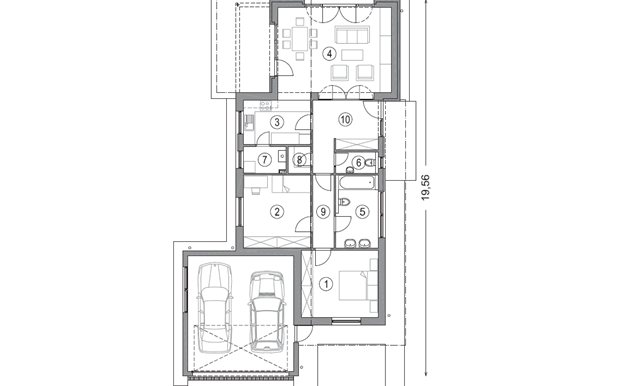
| Parter: | 91,40 m2 |
| + garaj | 33,00 m2 |
| + terasă | 35,54 m2 |
Parter: | |
| 1. cameră | 14,00 m2 |
| 2. cameră | 13,30 m2 |
| 3. bucătărie | 8,70 m2 |
| 5. camera de zi – sufragerie | 26,08 m2 |
| 6. baie | 8,07 m2 |
| 8. WC | 2,29 m2 |
| 9.cameră utilităţi | 3,04 m2 |
| 10. cămară | 1,64 m2 |
| 11. hol | 4,18 m2 |
| 12. antreu | 10,10 m2 |
Suprafaţa brută construită: | 161,35 m2 |
| Număr camere: | 3 buc. |
| Număr dormitoare: | 2 buc. |
| Panta acoperişului: | 30° |
| Zonă de construcţie recomandată:: | Interiorul terenului sau la marginea terenului |
Energy Class: A+
Energy class A+
A+A
B
C
D
E
F
G
H
Property Id: 22222
Price: 77,275 EUR Finisat
Rooms: 3
Bedrooms: 2
Bathrooms: 2
Suprafața totală: 91.40 m2
An construcție: 2023-04-13
Garaj: Indisponibil
Număr camere: 3
Dimensiuni camere: 14.00 m2
Bucătărie: 8.70 m2
Sufragerie: 26.08 m2
Camera de zi: 26.08 m2
Număr băi: 2
Dimensiuni Baie: 8.07 m2
WC: 2.29 m2
Utilitare: 3.04 m2
Cămară: 1.64 m2
Antreu: 10.10 m2
Reviews
You need to login in order to post a review
Similare
Featured
Sales
Model Paris Varianta II
94,108 EUR Finisat
Parter66,00 m2Etaj60,25 m2Total126,25 m2+ garaj29,96 m2+ terasă27,01 m2+&nb ...
Featured
Sales
Model Mediteran Varianta III
48,660 EUR Finisat
Parter85,22 m2+ terasă acoperită7,17 m2+ scară4,86 m2Parter:1. camera12,00 m22. ...







