Proprietate
- 4 Rooms
- 3 Bedrooms
- 2 Bathrooms
- 1 Garages
Descriere
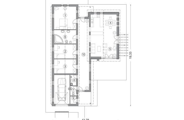
| Parter | 119,49 m2 |
| + garaj | 16,68 m2 |
| + terasă | 26,85 m2 |
Parter: | |
| 1. camera | 18,42 m2 |
| 2. camera | 15,05 m2 |
| 3. bucătărie – sufragerie | 19,73 m2 |
| 4. camera de zi | 20,21 m2 |
| 5.baie | 12,26 m2 |
| 6.WC | 2,12 m2 |
| 7. cameră utilităţi | 2,15 m2 |
| 8. debara | 1,71 m2 |
| 9.hol | 27,84 m2 |
Suprafaţa brută construită: | 206,97 m2 |
| Număr camere: | 4 buc. |
| Număr dormitoare: | 3 buc. |
| Panta acoperişului: | 13°, 40° |
| Zonă de construcţie recomandată: | Interiorul terenului |
Energy Class: A+
Energy class A+
A+A
B
C
D
E
F
G
H
Property Id: 22179
Price: 81,600 EUR Finisat
Rooms: 4
Bedrooms: 3
Bathrooms: 2
Suprafața totală: 119.49 m2
An construcție: 2023-04-13
Garaj: 1
Număr camere: 6
Dimensiuni camere: 18.42 m2
Bucătărie: 19.73 m2
Sufragerie: 19.73 m2
Camera de zi: 20.21 m2
Număr băi: 2
Dimensiuni Baie: 12.26 m2
WC: 2.12 m2
Utilitare: 2.15 m2
Cămară: 15.05 m2
Reviews
You need to login in order to post a review
Similare
Featured
Sales
Model Soare Varianta I
104,800 EUR Finisat
Parter82,72 m2Mansardă67,99 m2Total150,71 m2+garaj17,73 m2+terasă29,30 m2+terasa de pe aco ...
Featured
Sales
Model Eco Varianta I
32,540 EUR Finisat
Parter50,88 m2+terasa18,23 m2Parter:1. camera9,00 m22. bucătărie7,25 m23. sufragerie19,22 ...






