Proprietate
- 4 Rooms
- 3 Bedrooms
- 3 Bathrooms
- 1 Garages
Descriere
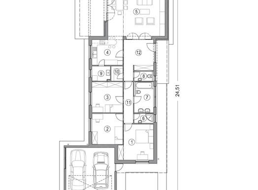
| Parter: | 123,07 m2 |
| + garaj | 30,53 m2 |
| + terasă | 35,61 m2 |
Parter: | |
| 1. cameră | 15,06 m2 |
| 2. cameră | 12,25 m2 |
| 3. cameră | 12,25 m2 |
| 4. bucătărie | 10,80 m2 |
| 5. camera de zi – sufragerie | 36,53 m2 |
| 6. baie | 2,42 m2 |
| 7. baie | 7,47 m2 |
| 8. WC | 2,26 m2 |
| 9. cameră utilităţi | 3,46 m2 |
| 10. cămară | 2,24 m2 |
| 11. hol | 5,17 m2 |
| 12. antreu | 13,16 m2 |
Suprafaţa brută construită: | 197,58 m2 |
| Număr camere: | 4 buc. |
| Număr dormitoare: | 3 buc. |
| Panta acoperişului: | 30° |
| Zonă de construcţie recomandată:: | Interiorul terenului sau la marginea terenului |
Energy Class: A+
Energy class A+
A+A
B
C
D
E
F
G
H
Property Id: 22214
Price: 93,380 EUR Finisat
Rooms: 4
Bedrooms: 3
Bathrooms: 3
Suprafața totală: 123.07 m2
An construcție: 2023-04-13
Garaj: 1
Număr camere: 4
Dimensiuni camere: 15.06 m2
Bucătărie: 10.80 m2
Sufragerie: 36.53 m2
Camera de zi: 36.53 m2
Număr băi: 3
Dimensiuni Baie: 7.47 m2
WC: 2.26 m2
Utilitare: 3.46 m2
Cămară: 2.24 m2
Antreu: 13.16 m2
Reviews
You need to login in order to post a review
Similare
Featured
Sales
Model Soare Varianta III/T
92,940 EUR Finisat
Parter82,72 m2Mansardă46,41 m2Total129,13 m2+ garaj17,73 m2+ terasă29,30 m2 ...
Featured
Sales
Model Mureş Varianta II
65,800 EUR Finisat
Parter110,59 m2+ terasa13,02 m2+ terasa acoperita9,06 m2Parter:1. camera10,31 m22. camera1 ...






