Proprietate
- 5 Rooms
- 5 Bedrooms
- 4 Bathrooms
- 1 Garages
Descriere
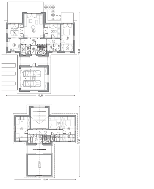
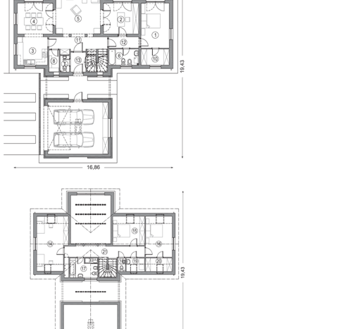
| Parter | 110,40 m2 |
| Mansardă | 68,54 m2 |
| Total | 178,94 m2 |
| + garaj | 35,26 m2 |
| + terasă | 30,92 m2 |
| + terasă mică | 7,41 m2 |
Parter: | |
| 1. cameră | 14,25 m2 |
| 2. cameră | 12,19 m2 |
| 3. bucătărie | 10,20 m2 |
| 4. sufragerie | 12,19 m2 |
| 5. camera de zi | 27,31 m2 |
| 6. baie | 5,44 m2 |
| 7. WC | 1,73 m2 |
| 8. cămară | 2,59 m2 |
| 9. debara | 1,27 m2 |
| 10. garderobă | 5,10 m2 |
| 11. hol | 10,83 m2 |
| 12. ???? | 3,84 m2 |
| 13. antreu | 3,46 m2 |
Mansardă: | |
| 14. cameră | 16,98 m2 |
| 15. cameră | 9,82 m2 |
| 16. cameră | 12,55 m2 |
| 17. baie | 7,02 m2 |
| 18. WC | 0,66 m2 |
| 19. cameră utilitare | 1,62 m2 |
| 20. garderobă | 2,32 m2 |
| 21. hol | 17,57 m2 |
Suprafaţa brută construită: | 207,45 m2 |
| Număr camere: | 5,5 buc. |
| Număr dormitoare: | 5 buc. |
| Panta acoperişului: | 37°, 42° |
| Zonă de construcţie recomandată: | Interiorul terenului sau la marginea terenului cu modificări ale proiectului |
Energy Class: A+
Energy class A+
A+A
B
C
D
E
F
G
H
Property Id: 22185
Price: 127,400 EUR Finisat
Rooms: 5
Bedrooms: 5
Bathrooms: 4
Suprafața totală: 178.94 m2
An construcție: 2023-04-13
Garaj: 1
Număr camere: 5
Dimensiuni camere: 16.98 m2
Bucătărie: 10.20 m2
Sufragerie: 12.19 m2
Camera de zi: 27.31 m2
Număr băi: 3
Dimensiuni Baie: 5.44 m2
WC: 1.73 m2
Utilitare: 1.62 m2
Cămară: 2.59 m2
Antreu: 3.46 m2
Reviews
You need to login in order to post a review
Similare
Featured
Sales
Model Paris Varianta I
122,600 EUR Finisat
Parter94,01 m2Etaj62,06 m2Total156,07 m2+ garaj33,00 m2+ terasă26,62 m2+ terasă de luat ma ...
Featured
Sales
Model Mediteran Varianta I
50,800 EUR Finisat
Parter85,22 m2+ terasă acoperită7,17 m2+ előlépcső4,86 m2Parter:1. camera12,08 m ...






