Proprietate
- 3 Rooms
- 2 Bedrooms
- 2 Bathrooms
Descriere
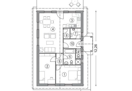
| Parter | 74,51 m2 |
| +terasa | 19,53 m2 |
Parter: | |
| 1. camera | 12,09 m2 |
| 2. camera | 12,84 m2 |
| 3. bucatarie | 6,96 m2 |
| 4. sufragerie | 25,03 m2 |
| 5. baie | 5,66 m2 |
| 6. WC | 1,24 m2 |
| 7. camera utilitare | 2,81 m2 |
| 8. camara | 1,85 m2 |
| 9. hol | 2,03 m2 |
| 10. antreu | 4,20 m2 |
Suprafata bruta construita: | 95,31 m2 |
| Numar camere: | 3 buc. |
| Numar dormitoare: | 2 buc. |
| Panta acoperisului: | 30° |
| Zona de constructie recomandata: | Interiorul terenului sau la marginea terenului |
Energy Class: A+
Energy class A+
A+A
B
C
D
E
F
G
H
Property Id: 22090
Price: 45,860 EUR Finisat
Rooms: 3
Bedrooms: 2
Bathrooms: 2
Suprafața totală: 95.31 m2
An construcție: 2023-04-13
Garaj: Indisponibil
Număr camere: 1
Dimensiuni camere: 12.84 m2
Bucătărie: 7.25 m2
Sufragerie: 25.03 m2
Număr băi: 2
Dimensiuni Baie: 5.98 m2
WC: 1.24 m2
Utilitare: 3.36 m2
Antreu: 4.95 m2
Reviews
You need to login in order to post a review
Similare
Featured
Sales
Model Confort Varianta II
84,200 EUR Finisat
Parter123,99 m2+garaj21,68 m2+terasa16,32 m2Parter:1. camera12,06 m22. camera12,11 m2 ...
Featured
Sales
Model Luna Varianta IV
81,600 EUR Finisat
Parter119,49 m2+ garaj16,68 m2+ terasă26,85 m2Parter:1. camera18,42 m22. camera1 ...





