Proprietate
- 3 Rooms
- 3 Bedrooms
- 2 Bathrooms
- 1 Garages
Descriere
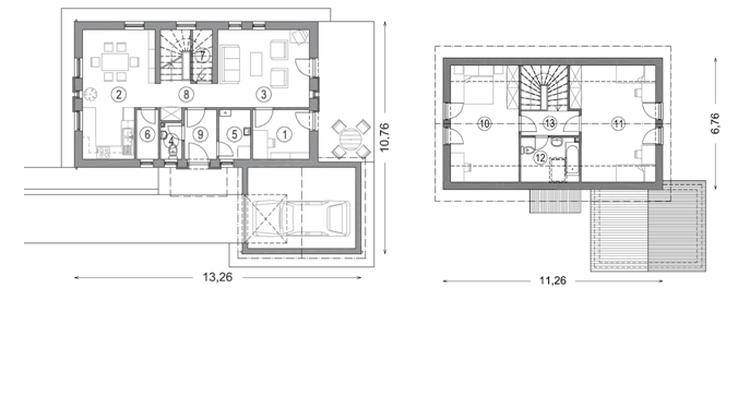
| Parter | 55,60 m2 |
| Mansarda | 45,73 m2 |
| Total | 101,33 m2 |
| +garaj | 18,75 m2 |
| +terasa | 16,83 m2 |
| Parter: | |
| 1. camera | 6,10 m2 |
| 2. bucatarie-sufragerie | 17,82 m2 |
| 3. camera de zi | 15,30 m2 |
| 4. WC | 1,66 m2 |
| 5. camera utilitare | 3,34 m2 |
| 6. camera | 2,30 m2 |
| 7. debara | 1,09 m2 |
| 8. hol | 4,54 m2 |
| 9. protecţie împotriva vântului | 3,45 m2 |
| Mansarda: | |
| 10. camera | 15,19 m2 |
| 11. camera | 17,34 m2 |
| 12. baie | 4,35 m2 |
| 13. comunicare | 8,85 m2 |
| Suprafata bruta construita: | 98,62 m2 |
| Numar camere: | 3,5 buc. |
| Numar dormitoare: | 3 buc. |
| Panta acoperisului: | 30° |
| Zona de constructie recomandata: | Interiorul terenului sau la marginea terenului |
Energy Class: A+
Energy class A+
A+A
B
C
D
E
F
G
H
Property Id: 22141
Price: 70,252 EUR Finisat
Rooms: 3
Bedrooms: 3
Bathrooms: 2
Suprafața totală: 101.33 m2
An construcție: 2023-04-13
Garaj: 1
Număr camere: 3
Dimensiuni camere: 17.34 m2
Bucătărie: 17.82 m2
Sufragerie: 17.82 m2
Camera de zi: 15.30 m2
Număr băi: 2
Dimensiuni Baie: 4.35 m2
WC: 1.66 m2
Utilitare: 4.76
Cămară: 15.19 m2
Reviews
You need to login in order to post a review
Similare
Featured
Sales
Model Soare Varianta IV
110,580 EUR Finisat
Parter87,96 m2Mansardă72,18 m2Total160,14 m2+ garaj18,48 m2+ terasă29,24 m2 ...
Featured
Sales
Model Mureş Varianta II
65,800 EUR Finisat
Parter110,59 m2+ terasa13,02 m2+ terasa acoperita9,06 m2Parter:1. camera10,31 m22. camera1 ...






