Proprietate
- 5 Rooms
- 3 Bedrooms
- 2 Bathrooms
Descriere
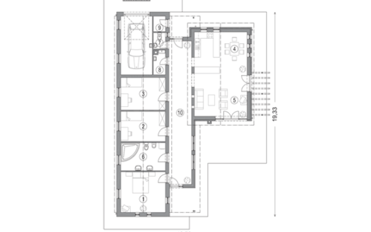
| Parter: | 101,61 m2 |
| + terasă | 33,54 m2 |
Parter: | |
| 1. cameră | 13,04 m2 |
| 2. cameră | 17,64 m2 |
| 3. cameră | 7,91 m2 |
| 4. bucătărie | 8,70 m2 |
| 5. camera de zi – sufragerie | 26,08 m2 |
| 6. baie | 6,29 m2 |
| 7. WC | 2,29 m2 |
| 8.cameră utilităţi | 3,04 m2 |
| 9. cămară | 1,64 m2 |
| 10. hol | 4,25 m2 |
| 11. antreu | 10,10 m2 |
Suprafaţa brută construită: | 156,59 m2 |
| Număr camere: | 3,5 buc. |
| Număr dormitoare: | 3 buc. |
| Panta acoperişului: | 30° |
| Zonă de construcţie recomandată: | Interiorul terenului sau la marginea terenului |
Energy Class: A+
Energy class A+
A+A
B
C
D
E
F
G
H
Property Id: 22227
Price: 64,185 EUR Finisat
Rooms: 5
Bedrooms: 3
Bathrooms: 2
Suprafața totală: 101.61 m2
An construcție: 2023-04-13
Garaj: Indisponibil
Număr camere: 3
Dimensiuni camere: 17.64 m2
Bucătărie: 8.70 m2
Sufragerie: 26.08 m2
Camera de zi: 26.08 m2
Număr băi: 2
Dimensiuni Baie: 6.29 m2
WC: 2.29 m2
Utilitare: 3,04 m2
Cămară: 1.64 m2
Antreu: 10.10 m2
Reviews
You need to login in order to post a review
Similare
Featured
Sales
Model Soare Varianta III/T
92,940 EUR Finisat
Parter82,72 m2Mansardă46,41 m2Total129,13 m2+ garaj17,73 m2+ terasă29,30 m2 ...
Featured
Sales
Model Mureş Varianta II
65,800 EUR Finisat
Parter110,59 m2+ terasa13,02 m2+ terasa acoperita9,06 m2Parter:1. camera10,31 m22. camera1 ...





