Proprietate
- 3 Rooms
- 3 Bedrooms
- 2 Bathrooms
Descriere
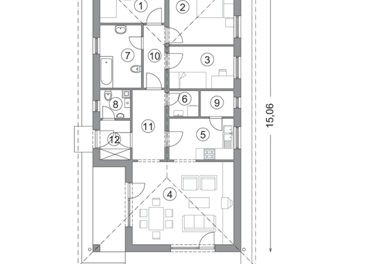
| Parter | 89,92 m2 |
| + terasă | 12,52 m2 |
| + terasă acoperită | 7,91 m2 |
Parter: | |
| 1. camera | 8,05 m2 |
| 2. camera | 12,07 m2 |
| 3. camera | 8,05 m2 |
| 4. camera de zi – sufragerie | 24,99 m2 |
| 5. bucătărie | 7,88 m2 |
| 6. cameră utilităţi | 2,24 m2 |
| 7. baie | 7,65 m2 |
| 8. WC | 2,36 m2 |
| 9. cămară | 2,52 m2 |
| 10. hol | 3,91 m2 |
| 11. hol | 6,65 m2 |
| 12. antreu | 3,55 m2 |
| Suprafaţa brută construită: | 120,63 m2 |
| Număr camere: | 3 buc. |
| Număr dormitoare: | 3 buc. |
| Panta acoperişului: | 25° |
| Zonă de construcţie recomandată: | Interiorul terenului |
Energy Class: A+
Energy class A+
A+A
B
C
D
E
F
G
H
Property Id: 22097
Price: 53,800 EUR Finisat
Rooms: 3
Bedrooms: 3
Bathrooms: 2
Suprafața totală: 120.63 m2
An construcție: 2023-04-13
Garaj: Indisponibil
Număr camere: 3
Dimensiuni camere: 12.07 m2
Bucătărie: 7.88 m2
Sufragerie: 24.99 m2
Camera de zi: 24.99 m2
Număr băi: 2
Dimensiuni Baie: 7.65 m2
WC: 2.36 m2
Utilitare: 2.24 m2
Cămară: 8.05 m2
Antreu: 3.55 m2
Reviews
You need to login in order to post a review
Similare
Featured
Sales
Model Andrea Varianta I
70,252 EUR Finisat
Parter55,60 m2Mansarda45,73 m2Total101,33 m2+garaj18,75 m2+terasa16,83 m2Parter:1. camera6 ...
Featured
Sales
Model Soare Varianta II
127,400 EUR Finisat
Parter110,40 m2Mansardă68,54 m2Total178,94 m2+ garaj35,26 m2+ terasă30,92 m ...






