Proprietate
- 4 Rooms
- 3 Bedrooms
- 3 Bathrooms
- 1 Garages
Descriere
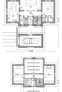
| Parter | 82,72 m2 | ||
Mansardă | 46,41 m2 | ||
| Total | 129,13 m2 | ||
| + garaj | 18,48 m2 | ||
| + terasă | 29,30 m2 | ||
Parter: | |||
| 1. cameră | 13,96 m2 | ||
| 2. bucătărie-sufragerie | 18,69 m2 | ||
| 3. camera de zi | 27,00 m2 | ||
| 4. baie | 4,28 m2 | ||
| 5. WC | 1,73 m2 | ||
| 6. cămară | 2,59 m2 | ||
| 7. debara | 1,27 m2 | ||
| 8. hol | 10,26 m2 | ||
| 9. antreu | 2,94 m2 | ||
Mansardă : | |||
| 10. cameră | 13,47 m2 | ||
| 11. cameră | 13,47 m2 | ||
| 12. baie | 6,52 m2 | ||
| 13. hol | 12,95 m2 | ||
Suprafaţa brută construită: | 154,45 m2 | ||
| Număr camere: | 4 buc. | ||
| Număr dormitoare: | 3 buc. | ||
| Panta acoperişului: | 37°, 42° | ||
| Zonă de construcţie recomandată:: | Interiorul terenului sau la marginea terenului cu mici modificări ale proiectului |
Energy Class: A+
Energy class A+
A+A
B
C
D
E
F
G
H
Property Id: 22189
Price: 88,510 EUR Finisat
Rooms: 4
Bedrooms: 3
Bathrooms: 3
Suprafața totală: 129.13 m2
An construcție: 2023-04-13
Garaj: 1
Număr camere: 4
Dimensiuni camere: 13.96 m2
Bucătărie: 18.69 m2
Sufragerie: 18.69 m2
Camera de zi: 27.00 m2
Număr băi: 3
Dimensiuni Baie: 6.52 m2
WC: 1.73 m2
Cămară: 2.59 m2
Antreu: 2.94 m2
Reviews
You need to login in order to post a review
Similare
Featured
Sales
Model Eco Varianta II
45,860 EUR Finisat
Parter74,51 m2+terasa19,53 m2Parter:1. camera12,09 m22. camera12,84 m23. bucatar ...
Featured
Sales
Model Andrea Varianta I
70,252 EUR Finisat
Parter55,60 m2Mansarda45,73 m2Total101,33 m2+garaj18,75 m2+terasa16,83 m2Parter:1. camera6 ...






