Proprietate
- 5 Rooms
- 3 Bedrooms
- 2 Bathrooms
- 1 Garages
Descriere
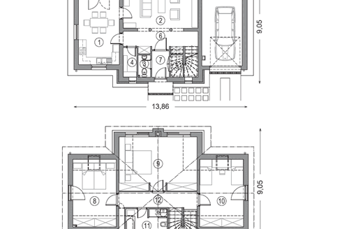
| Parter | 66,00 m2 |
| Etaj | 60,25 m2 |
| Total | 126,25 m2 |
| + garaj | 29,96 m2 |
| + terasă | 27,01 m2 |
| + terasa de pe acoperiş | 5,76 m2 |
Parter: | |
| 1. bucătărie-sufragerie | 22,58 m2 |
| 2. camera de zi | 25,96 m2 |
| 3. WC | 1,84 m2 |
| 4. cameră utilităţi | 7,19 m2 |
| 5. cămară | 2,16 m2 |
| 6. debara | 1,12 m2 |
| 7. antreu | 5,15 m2 |
Etaj: | |
| 8. cameră | 11,08 m2 |
| 9. cameră | 12,36 m2 |
| 10. cameră | 13,54 m2 |
| 11. baie | 6,79 m2 |
| 12. garderobă | 2,03 m2 |
| 14. hol | 14,45 m2 |
Suprafaţa brută construită: | 126,68 m2 |
| Număr camere: | 3,5 buc. |
| Număr dormitoare: | 3 buc. |
| Panta acoperişului: | 30° |
| Zonă de construcţie recomandată: | Interiorul terenului sau la marginea terenului |
Energy Class: A+
Energy class A+
A+A
B
C
D
E
F
G
H
Property Id: 22209
Price: 94,108 EUR Finisat
Rooms: 5
Bedrooms: 3
Bathrooms: 2
Suprafața totală: 126.25 m2
An construcție: 2023-04-13
Garaj: 1
Număr camere: 5
Dimensiuni camere: 13.54 m2
Bucătărie: 22.58 m2
Sufragerie: 22.58 m2
Camera de zi: 25.96 m2
Număr băi: 2
Dimensiuni Baie: 6.79 m2
WC: 1.84 m2
Utilitare: 7.19 m2
Cămară: 2.16 m2
Antreu: 5.15 m2
Reviews
You need to login in order to post a review
Similare
Featured
Sales
Model Belvedere Varianta III
104,100 EUR Finisat
Parter72,84 m2Etaj74,74 m2Total147,58 m2+ garaj34,20 m2+ terasa6,55 m2+ bal ...
Featured
Sales
Model Paris Varianta I
122,600 EUR Finisat
Parter94,01 m2Etaj62,06 m2Total156,07 m2+ garaj33,00 m2+ terasă26,62 m2+ terasă de luat ma ...






