Proprietate
- 3 Rooms
- 3 Bedrooms
- 2 Bathrooms
Descriere
| Parter | 87,27 m2 |
| + terasă | 20,18 m2 |
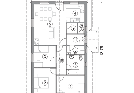
Parter: | |
| 1. camera | 12,09 m2 |
| 2. camera | 12,30 m2 |
| 3. camera | 9,00 m2 |
| 4. bucătărie | 6,50 m2 |
| 5. sufragerie | 25,08 m2 |
| 6.baie | 6,75 m2 |
| 7. WC | 1,35 m2 |
| 8. cameră utilitare | 3,00 m2 |
| 9. cămară | 2,25 m2 |
| 10. hol | 5,20 m2 |
| 11. antreu | 3,75 m2 |
Suprafaţa brută construită: | 110,02 m2 |
| Număr camere: | 3,5 buc. |
| Număr dormitoare: | 3 buc. |
| Panta acoperişului: | 30° |
| Zonă de construcţie recomandată: | Interiorul terenului sau la marginea terenului |
Energy Class: A+
Energy class A+
A+A
B
C
D
E
F
G
H
Property Id: 22093
Price: 52,500 EUR Finisat
Rooms: 3
Bedrooms: 3
Bathrooms: 2
Suprafața totală: 110.02 m2
An construcție: 2023-04-13
Garaj: Indisponibil
Număr camere: 1
Dimensiuni camere: 12.30 m2
Bucătărie: 6.50 m2
Sufragerie: 25.08 m2
Număr băi: 2
Dimensiuni Baie: 6.75 m2
WC: 1.35 m2
Utilitare: 3.36 m2
Cămară: 2.25
Antreu: 3.75 m2
Reviews
You need to login in order to post a review
Similare
Featured
Sales
Model Andrea Varianta I
70,252 EUR Finisat
Parter55,60 m2Mansarda45,73 m2Total101,33 m2+garaj18,75 m2+terasa16,83 m2Parter:1. camera6 ...
Featured
Sales
Model Soare Varianta II
127,400 EUR Finisat
Parter110,40 m2Mansardă68,54 m2Total178,94 m2+ garaj35,26 m2+ terasă30,92 m ...






