Proprietate
- 5 Rooms
- 3 Bedrooms
- 2 Bathrooms
- 1 Garages
Descriere
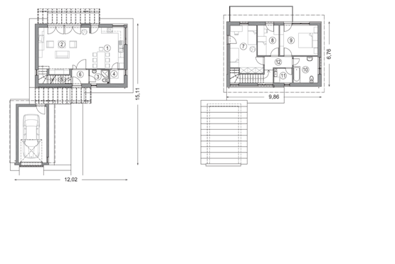
| Parter | 50,10 m2 |
| Etaj | 52,12 m2 |
| Total | 102,22 m2 |
| +garaj | 18,00 m2 |
| +terasa | 6,55 m2 |
| +balcon | 10,00 m2 |
Parter: | |
| 1. bucatarie-sufragerie | 15,62 m2 |
| 2. camera de zi | 25,74 m2 |
| 3. baie | 3,05 m2 |
| 4. camara | 2,25 m2 |
| 5. debara | 0,74 m2 |
| 6. antreu | 2,70 m2 |
Etaj: | |
| 7. camera | 14,38 m2 |
| 8. camera | 6,93 m2 |
| 9. camera | 12,44 m2 |
| 10. baie | 7,01 m2 |
| 11. camera de utilitate | 2,85 m2 |
| 12. hol | 8,51 m2 |
Suprafata bruta construita: | 105,31 m2 |
| Numar camere: | 3,5 buc. |
| Numar dormitoare: | 3 buc. |
| Panta acoperisului: | 6° |
| Zona de constructie recomandata: | Interiorul terenului sau la marginea terenului |
Energy Class: A+
Energy class A+
A+A
B
C
D
E
F
G
H
Property Id: 22155
Price: 70,250 EUR Finisat
Rooms: 5
Bedrooms: 3
Bathrooms: 2
Suprafața totală: 102.22 m2
An construcție: 2023-04-13
Garaj: 1
Număr camere: 5
Dimensiuni camere: 14.38 m2
Bucătărie: 15.62 m2
Sufragerie: 15.62 m2
Camera de zi: 25.74 m2
Număr băi: 2
Dimensiuni Baie: 7.01 m2
WC: 3.05 m2
Utilitare: 2.85 m2
Cămară: 12.44 m2
Antreu: 2.70 m2
Reviews
You need to login in order to post a review
Similare
Featured
Sales
Model Mureş Varianta III
75,300 EUR Finisat
Parter126,11 m2+ terasă13,52 m2+ terasă acoperită10,77 m2Parter:1. camera10,00 m ...
Featured
Sales
Model Belvedere Varianta III
104,100 EUR Finisat
Parter72,84 m2Etaj74,74 m2Total147,58 m2+ garaj34,20 m2+ terasa6,55 m2+ bal ...






