Proprietate
- 5 Rooms
- 4 Bedrooms
- 2 Bathrooms
- 1 Garages
Descriere
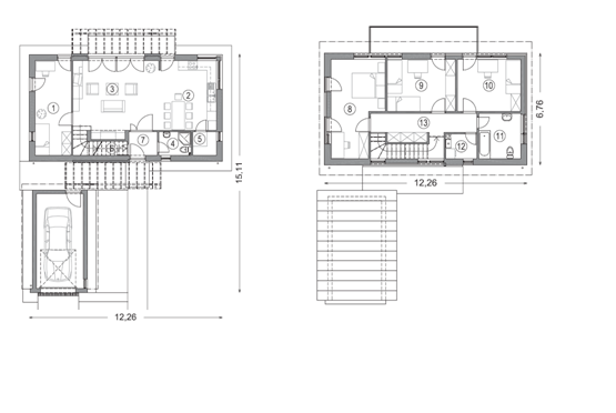
| Parter | 63,90 m2 |
| Etaj | 66,16 m2 |
| Total | 130,06 m2 |
| + garaj | 18,00 m2 |
| + terasa | 6,55 m2 |
| + balcon | 10,00 m2 |
Parter: | |
| 1. camera | 13,80 m2 |
| 2. bucatarie-sufragerie | 15,62 m2 |
| 3. camera de zi | 25,74 m2 |
| 4. baie | 3,05 m2 |
| 5. camara | 2,25 m2 |
| 6. debara | 0,74 m2 |
| 7. antreu | 2,70 m2 |
Etaj: | |
| 8. camera | 16,95 m2 |
| 9. camera | 13,07 m2 |
| 10. camera | 12,13 m2 |
| 11. baie | 7,01 m2 |
| 12. camera utilitare | 2,85 m2 |
| 14. hol | 14,15 m2 |
Suprafata bruta construita: | 121,67 m2 |
| Numar camere: | 5 buc. |
| Numar dormitoare: | 4 buc. |
| Panta acoperisului: | 6° |
| Zona de constructie recomandata: | Interiorul terenului sau la marginea terenului cu modificari ale proiectului |
Energy Class: A+
Energy class A+
A+A
B
C
D
E
F
G
H
Property Id: 22159
Price: 85,570 EUR Finisat
Rooms: 5
Bedrooms: 4
Bathrooms: 2
Suprafața totală: 130.06 m2
An construcție: 2023-04-13
Garaj: 1
Număr camere: 5
Dimensiuni camere: 16.95 m2
Bucătărie: 15.62 m2
Sufragerie: 15.62 m2
Camera de zi: 25.74 m2
Număr băi: 2
Dimensiuni Baie: 7.01 m2
WC: 3.05 m2
Utilitare: 2.85 m2
Cămară: 13.80 m2
Antreu: 2.70 m2
Reviews
You need to login in order to post a review
Similare
Featured
Sales
Model Confort Varianta I
71,800 EUR Finisat
Parter102,70 m2+garaj20,63 m2+terasa16,01 m2Parter:1. camera12,38 m22. camera12, ...
Featured
Sales
Model Luna Varianta IV
81,600 EUR Finisat
Parter119,49 m2+ garaj16,68 m2+ terasă26,85 m2Parter:1. camera18,42 m22. camera1 ...






