Proprietate
- 5 Rooms
- 5 Bedrooms
- 2 Bathrooms
Descriere
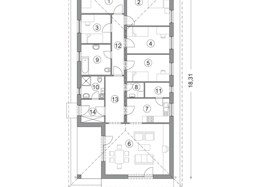
| Parter | 126,11 m2 |
| + terasă | 13,52 m2 |
| + terasă acoperită | 10,77 m2 |
Parter: | |
| 1. camera | 10,00 m2 |
| 2. camera | 14,60 m2 |
| 3. camera | 7,42 m2 |
| 4. camera | 10,00 m2 |
| 5. camera | 10,00 m2 |
| 6. camera de zi – sufragerie | 28,74 m2 |
| 7. bucătărie | 9,00 m2 |
| 8.camera utilităţi | 2,24 m2 |
| 9.baie | 7,84 m2 |
| 10. baie | 4,32 m2 |
| 11. cămară | 3,22 m2 |
| 12. hol | 6,50 m2 |
| 13. hol | 7,61 m2 |
| 14. antreu | 4,62 m2 |
Suprafaţa brută construită: | 164,94 m2 |
| Număr camere: | 4 buc. |
| Număr dormitoare: | 5 buc. |
| Panta acoperişului: | 25° |
| Zonă de construcţie recomandată: | Interiorul terenului |
Energy Class: A+
Energy class A+
A+A
B
C
D
E
F
G
H
Property Id: 22109
Price: 75,300 EUR Finisat
Rooms: 5
Bedrooms: 5
Bathrooms: 2
Suprafața totală: 164.94 m2
An construcție: 2023-04-13
Garaj: Indisponibil
Număr camere: 4
Dimensiuni camere: 14.60 m2
Bucătărie: 9.00 m2
Sufragerie: 28.74 m2
Camera de zi: 28.74 m2
Număr băi: 2
Dimensiuni Baie: 7.84 m2
WC: 4.32 m2
Utilitare: 2.24 m2
Cămară: 10.00 m2
Antreu: 4.62 m2
Reviews
You need to login in order to post a review
Similare
Featured
Sales
Model Soare Varianta I
104,800 EUR Finisat
Parter82,72 m2Mansardă67,99 m2Total150,71 m2+garaj17,73 m2+terasă29,30 m2+terasa de pe aco ...
Featured
Sales
Model Eco Varianta I
32,540 EUR Finisat
Parter50,88 m2+terasa18,23 m2Parter:1. camera9,00 m22. bucătărie7,25 m23. sufragerie19,22 ...







