Proprietate
- 3 Rooms
- 3 Bedrooms
- 2 Bathrooms
Descriere
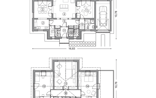
| Parter | 85,22 m2 |
| + terasă acoperită | 7,17 m2 |
| + előlépcső | 4,86 m2 |
Parter: | |
| 1. camera | 12,08 m2 |
| 2. camera | 12,08 m2 |
| 3. camera | 7,00 m2 |
| 4. camera de zi | 23,00 m2 |
| 5. bucătărie – sufragerie | 12,48 m2 |
| 6. WC | 1,44 m2 |
| 7. baie | 5,24 m2 |
| 8. cămară | 1,44 m2 |
| 9. hol | 10,46 m2 |
Suprafaţa brută construită: | 119,37 m2 |
| Număr camere: | 3,5 buc. |
| Număr dormitoare: | 3 buc. |
| Panta acoperişului: | 20° |
| Zonă de construcţie recomandată: | Interiorul terenului sau la marginea terenului |
Energy Class: A+
Energy class A+
A+A
B
C
D
E
F
G
H
Property Id: 22117
Price: 50,800 EUR Finisat
Rooms: 3
Bedrooms: 3
Bathrooms: 2
Suprafața totală: 119.37 m2
An construcție: 2023-04-13
Garaj: Indisponibil
Număr camere: 3
Dimensiuni camere: 12.08 m2
Bucătărie: 9.00 m2
Sufragerie: 23.00 m2
Camera de zi: 23.00 m2
Număr băi: 2
Dimensiuni Baie: 5.24 m2
WC: 1.44 m2
Cămară: 7.00 m2
Reviews
You need to login in order to post a review
Similare
Featured
Sales
Model Soare Varianta I
104,800 EUR Finisat
Parter82,72 m2Mansardă67,99 m2Total150,71 m2+garaj17,73 m2+terasă29,30 m2+terasa de pe aco ...
Featured
Sales
Model Eco Varianta I
32,540 EUR Finisat
Parter50,88 m2+terasa18,23 m2Parter:1. camera9,00 m22. bucătărie7,25 m23. sufragerie19,22 ...






