Proprietate
- 6 Rooms
- 5 Bedrooms
- 2 Bathrooms
- 1 Garages
Descriere
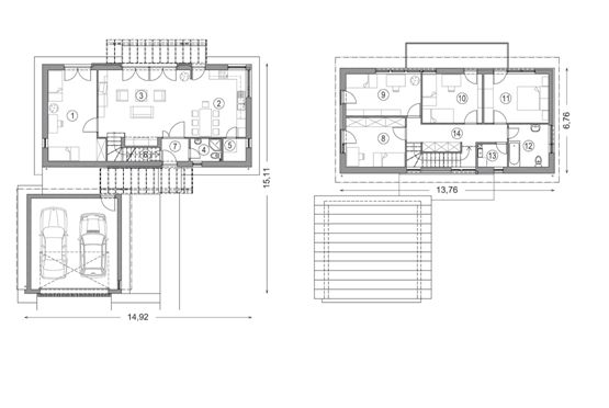
| Parter | 72,84 m2 |
| Etaj | 74,74 m2 |
| Total | 147,58 m2 |
| + garaj | 34,20 m2 |
| + terasa | 6,55 m2 |
| + balcon | 10,00 m2 |
Parter: | |
| 1. camera | 20,10 m2 |
| 2. bucatarie-sufragerie | 15,62 m2 |
| 3. camera de zi | 28,38 m2 |
| 4. baie | 3,05 m2 |
| 5. camara | 2,25 m2 |
| 6. debara | 0,74 m2 |
| 7. antreu | 2,70 m2 |
Etaj: | |
| 8. camera | 12,16 m2 |
| 9. camera | 12,96 m2 |
| 10. camera | 12,13 m2 |
| 11. camera | 13,07 m2 |
| 12. baie | 7,01 m2 |
| 13. camera utilitare | 2,85 m2 |
| 14. hol | 14,56 m2 |
Suprafata bruta construita: | 149,36 m2 |
| Numar camere: | 6 buc. |
| Numar dormitoare: | 5 buc. |
| Panta acoperisului: | 6° |
| Zona de constructie recomandata:: | Interiorul terenului sau la marginea terenului |
Energy Class: A+
Energy class A+
A+A
B
C
D
E
F
G
H
Property Id: 22163
Price: 104,100 EUR Finisat
Rooms: 6
Bedrooms: 5
Bathrooms: 2
Suprafața totală: 147.58 m2
An construcție: 2023-04-13
Garaj: 1
Număr camere: 6
Dimensiuni camere: 20.10 m2
Bucătărie: 15.62 m2
Sufragerie: 15.62 m2
Camera de zi: 28.38 m2
Număr băi: 2
Dimensiuni Baie: 7.01 m2
WC: 3.05 m2
Utilitare: 2.85 m2
Cămară: 12.96 m2
Antreu: 2.70 m2
Reviews
You need to login in order to post a review
Similare
Featured
Sales
Model Soare Varianta I
104,800 EUR Finisat
Parter82,72 m2Mansardă67,99 m2Total150,71 m2+garaj17,73 m2+terasă29,30 m2+terasa de pe aco ...
Featured
Sales
Model Eco Varianta I
32,540 EUR Finisat
Parter50,88 m2+terasa18,23 m2Parter:1. camera9,00 m22. bucătărie7,25 m23. sufragerie19,22 ...






