Proprietate
- 4 Rooms
- 5 Bedrooms
- 3 Bathrooms
Descriere
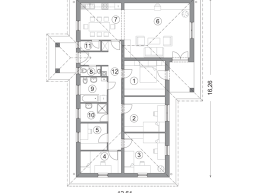
| Parter | 85,22 m2 |
| + terasă acoperită | 7,17 m2 |
| + scară | 4,86 m2 |
Parter: | |
| 1. camera | 12,00 m2 |
| 2. camera | 12,00 m2 |
| 3. camera | 13,69 m2 |
| 4. camera | 7,50 m2 |
| 5. camera | 6,00 m2 |
| 6. camera de zi | 20,00 m2 |
| 7. bucătărie – sufragerie | 13,33 m2 |
| 8.WC | 1,67 m2 |
| 9.baie | 5,59 m2 |
| 10. baie | 4,16 m2 |
| 11. cămară | 1,67 m2 |
| 12. hol | 15,86 m2 |
Suprafaţa brută construită: | 162,67 m2 |
| Număr camere: | 4 buc. |
| Număr dormitoare: | 5 buc. |
| Panta acoperişului: | 20° |
| Zonă de construcţie recomandată: | Interiorul terenului sau la marginea terenului |
Energy Class: A+
Energy class A+
A+A
B
C
D
E
F
G
H
Property Id: 22125
Price: 48,660 EUR Finisat
Rooms: 4
Bedrooms: 5
Bathrooms: 3
Suprafața totală: 162.67 m2
An construcție: 2023-04-13
Garaj: Indisponibil
Număr camere: 4
Dimensiuni camere: 13.69 m2
Bucătărie: 13.33 m2
Sufragerie: 13.33 m2
Camera de zi: 20.00 m2
Număr băi: 3
Dimensiuni Baie: 5.59 m2
WC: 1.67 m2
Cămară: 12.00 m2
Reviews
You need to login in order to post a review
Similare
Featured
Sales
Model Soare Varianta IV
110,580 EUR Finisat
Parter87,96 m2Mansardă72,18 m2Total160,14 m2+ garaj18,48 m2+ terasă29,24 m2 ...
Featured
Sales
Model Mureş Varianta II
65,800 EUR Finisat
Parter110,59 m2+ terasa13,02 m2+ terasa acoperita9,06 m2Parter:1. camera10,31 m22. camera1 ...






